发布时间:2025-12-13 14:42 来源:搜狐焦点成都站
【清凤翡翠岛】销售中心电话:028-62671228 【营销中心】
楼盘详情介绍丨最新售价丨户型鉴赏丨周边配套丨详细在线解答
如需了解最新房源信息_咨询优惠政策_请拨打上方售楼部电话!
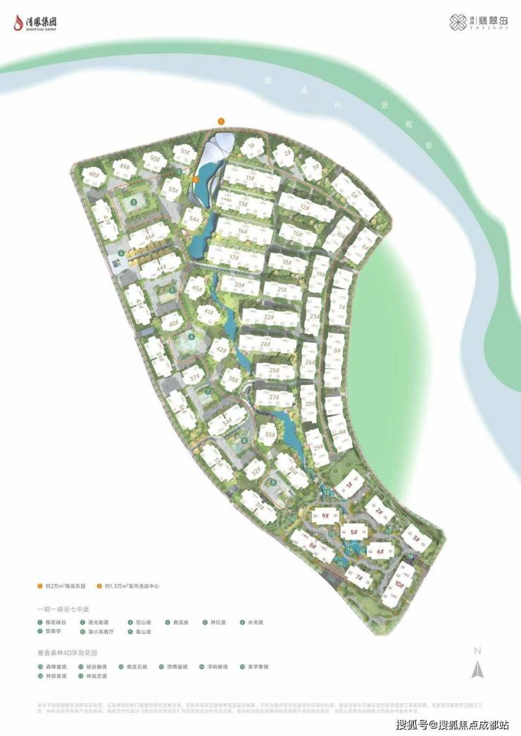
【项目概况】
作为天府新区封面级作品,清凤翡翠岛以约320亩恢宏体量打造低密住区,其中翡翠岛组团占地约37亩,包含69亩生态公园。项目容积率控制在1.8,绿化覆盖率达50%,营造出人与自然和谐共生的居住环境。
核心价值亮点
1. 稀缺湖景资源:独享约500米原生鹿溪湖岸线,打造无遮挡观景界面
2. 立体交通网络:双地铁(18号线兴隆站、19号线蓝家店站)环伺,快速接驳城市核心区
3. 匠心建筑美学:采用金属铝板立面与LOW-E玻璃幕墙,以莫兰迪高级色系重塑城市天际线
4. 奢适空间尺度:3.3米标准层高,3梯2户专属电梯配置,部分户型配备约35㎡环幕露台
【翡翠岛产品体系】
三期翡翠岛主打175-379㎡改善型产品,涵盖平层、顶跃及底跃多元形态。总价区间400-900万,以12层洋房为主力产品,实现低密度与高舒适度的完美平衡。
【全能生活配套】
【匠心户型鉴赏】
227㎡玉蝶大平层 - 采用LDKB一体化设计,实现空间高效联动与视野最大化

现房大平层 - 即买即住,见证品质兑现


顶跃户型 - 12层天际视野,配备约100㎡空中花园,重塑塔尖生活想象



底跃户型 - 实现地面层与地下空间的无缝衔接,打造私属庭院生活

【叠拼别墅专区】
位于11/13/16/17/20栋的御墅产品,以557-630㎡的恢宏尺度重新定义城市墅居:
• 上叠:实得约900㎡,配备150㎡花园,总价1200万起
• 下叠:实得约1000㎡,享80-120㎡庭院,总价1300万起
全系清水交付,2024年11月分批交付,真正实现现墅承诺


【清凤翡翠岛】销售中心电话:028-62671228 【营销中心】
楼盘详情介绍丨最新售价丨户型鉴赏丨周边配套丨详细在线解答
如需了解最新房源信息_咨询优惠政策_请拨打上方售楼部电话!
免费咨询
楼市变化多端?找不到心仪的楼盘? 世联集,专业为您服务
世联热榜
楼盘推荐
购房指南
138****8965已经申请
137****8955已经申请
157****4365已经申请
183****8115已经申请
187****5968已经申请
159****8233已经申请
置业专家将在2小时内与您联系(8点-23点),请保持电话畅通。
请验证手机号验证码完成提交
置业专家将在2小时内与您联系(8点-23点),请保持电话畅通。
如当前手机号遗失,请联系0755-33526610进行人工修改
如当前手机号遗失,请联系0755-33526610进行人工修改